مشاريعنا > المنشآت الخدمية و الأبنية الصناعية > محطة مياه مدينة بكر جو



المالك: وزارة البلديات
الموقع: جمهورية العراق- السليمانية
الكلفة: 300,000 USD
التاريخ: 1981

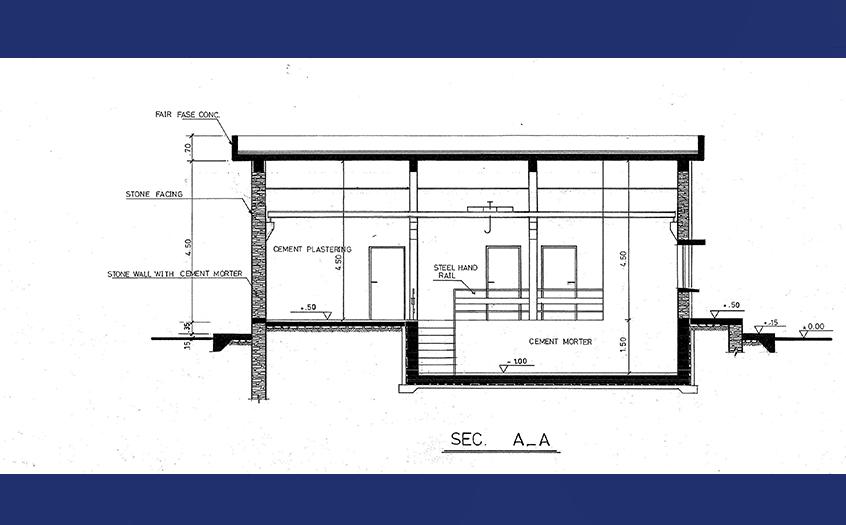
لقد كانت المهمة الموكلة إلينا إعداد التصاميم الإنشائية و الميكانيكية للمشروع الذي نُفذ في حينه من قبل المقاول المهندس جمال الحويزي .

 
  • thumbnail
  • thumbnail
  • أبو ظبي - شارع الشيخ راشد بن سعيد- بناية ورثة حارب العتيبة-شقة رقم 202                                                                         

  • جمهورية العراق-بغداد - حي الوحدة- محلة 902- زقاق رقم 6 بناية رقم 4/11

  • جمهورية العراق- أربيل

  • فاكس: 97126328350 +   البريد الالكتروني: aswaduae@eim.ae