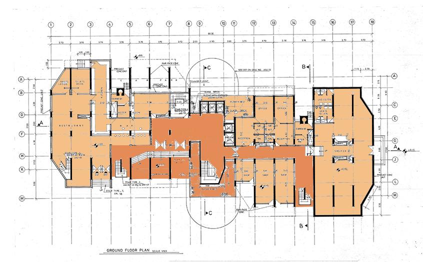
Our Projects > High Rise Buildings > 366 Saimar Residential Towers



Client: Islamic Endowment Department
Location: Iraq- Basrah
Price: 7,000,000 USD
Date: 1984-1988

 

This project was the first high rise building designed as residential building in Basrah at the southern part of Iraq.

It is one of three buildings located at the same road (Al-Jumhariya) close to the military hospital and Abu-Sheaer Square.

 

 

 

 
  • thumbnail
  • thumbnail
  • thumbnail
  • Abu Dhabi-Rashid Bin Saeed St.- Harib Al Uteiba Building-Flat#202.

  • Iraq-Baghdad-Al wahda Quarter-Neigh No 902-St # 6–11

  • Iraq- Arbil

  • Fax:+971 2 6328350     Email:aswaduae@eim.ae