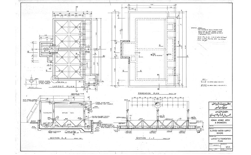
Our Projects > Service Facilities and Industrial Projects > Al-Riad Water Purification Station



Client: Ministry of Municipalities
Location: Iraq- Kirkuk
Price: 300,000 USD
Date: 1980

Our contribution in this project was to provide the contractor with the structural and mechanical designs for. 

 
  • thumbnail
  • Abu Dhabi-Rashid Bin Saeed St.- Harib Al Uteiba Building-Flat#202.

  • Iraq-Baghdad-Al wahda Quarter-Neigh No 902-St # 6–11

  • Iraq- Arbil

  • Fax:+971 2 6328350     Email:aswaduae@eim.ae