Our Projects > Competitions and Monuments > Competition Design of the Old City of Najaf- First Prize



Client: Municipality of Najaf
Location: Iraq- Old City of Najaf
Price: 45,800,000 USD
Date: 1997-2003

 

Visitors City

Visitors to Imam Ali holy shrine at the center of the old city of Najaf need a lot of services which the city of Najaf lacks to, such as hotels, shops, restaurants, cafes, arcades, car parks, and public toilets.

This project is between Imam Ali holy shrine and Najaf sea cliff on an area of 55000/-sqm.

 

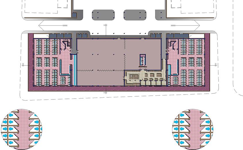
Imam Ali Reception Hall & Main Public Toilets

 A 500 person reception hall was required to be designed to facilitate the needs of the municipality gatherings to all official and ceremonial occasions held in the holy city of Najaf. This is placed underground the main plaza facing the parking area.

 

Bahar Al Najaf hotels complex

On the cliff of Bahar Al Najaf nine 3 star hotels complex was designed to accommodate Imam Ali Shrine visitors. These hotels are of different number of stories taking the cliff inclination into consideration, at the same time the hotels buildings should not intersect the view between the shrine and Bahar Al Najaf.

The influence of Islamic architecture can be set on the hotels facades by using the local Islamic pointed arches and using local clay brick facing.

 

 

 

 
  • thumbnail
  • thumbnail
  • thumbnail
  • thumbnail
  • thumbnail
  • thumbnail
  • thumbnail
  • thumbnail
  • thumbnail
  • thumbnail
  • thumbnail
  • thumbnail
  • thumbnail
  • thumbnail
  • thumbnail
  • Abu Dhabi-Rashid Bin Saeed St.- Harib Al Uteiba Building-Flat#202.

  • Iraq-Baghdad-Al wahda Quarter-Neigh No 902-St # 6–11

  • Iraq- Arbil

  • Fax:+971 2 6328350     Email:aswaduae@eim.ae